Here is the latest version of the floorplan and contrary to popular opinion I want to keep the laundry where it is! We are still fine tuning it, I want the master bedroom to jut out the way it is in the previous plan and we will be taking some of the width off the meals family & rumpus areas (they are a bit large!!) The house will be about 28/29 squares + double garage...
Tuesday, October 16, 2007
floorplan update
Got another 2 quotes today - and they were not too bad...we are starting to narrow it down and meeting up with a couple of the builders to discuss further this week...

Friday, October 12, 2007
Three things...
1. Abolition of Services: the electricity and gas have been disconnected completely now - another step forward!
2. We also got a couple of quotes for the demolition of the house which is handy to know how much we have to save up!!
3. The bank has pre-approved our construction loan and so now we just have to find a builder with the best price and quality to match!!
Oh and I just thought of a fourth....the neighbours bordering our backyard have a huge tree just over the fence and it may pose a problem for us - possibly - when laying the slab for the new house; I wonder how attached they are to that tree??? Luke may have to go and have a friendly chat with them at some stage....
2. We also got a couple of quotes for the demolition of the house which is handy to know how much we have to save up!!
3. The bank has pre-approved our construction loan and so now we just have to find a builder with the best price and quality to match!!
Oh and I just thought of a fourth....the neighbours bordering our backyard have a huge tree just over the fence and it may pose a problem for us - possibly - when laying the slab for the new house; I wonder how attached they are to that tree??? Luke may have to go and have a friendly chat with them at some stage....
Research Research Research!
We have been doing so much research on builders lately I am almost display homed out! We have pretty much decided on the floorplan we want - its our own design but I wouldn't call it unique as its pretty standard with living areas on one side of the house and bedrooms on the other....it is straightforward and has 4 large beds, formal living, study, with large open meals and living areas. Most project builders have something similar but not quite right and those that are not willing to adapt to our plan (i.e. Henley, Metricon, Simmonds etc) are already out of the question. We have opted not to include alfresco as we will be doing some paving and putting a pergola or similar up after the house is built.
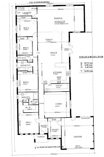
So far we are looking at JG King, Dona Homes, Snowdon Homes, Colex Homes, Dennis Family Homes and Kirkham homes. This doesn't mean we have ruled out other options such as local builders, but we have approached the builders above and asked them to price our floor plan with a list of our inclusions - so far I am happy with the service from all and their sales reps are all very approachable and helpful. Some more flexible than others and some more willing to assist than others, but overall it is proving a positive experience so far. This is our (very basic) design...

and this one is the same with thanks to Sophy from Colex Homes for tidying it up for us...(you may have to click to enlarge)
The list below are items we want as inclusions for our new home, some builders do some of these as standard, others have upgrade deals and others charge extra for certain items, so its a little hard to compare apples with apples directly - but we are going to try and get the best value for money with the least amount of compromise....
So far we are looking at JG King, Dona Homes, Snowdon Homes, Colex Homes, Dennis Family Homes and Kirkham homes. This doesn't mean we have ruled out other options such as local builders, but we have approached the builders above and asked them to price our floor plan with a list of our inclusions - so far I am happy with the service from all and their sales reps are all very approachable and helpful. Some more flexible than others and some more willing to assist than others, but overall it is proving a positive experience so far. This is our (very basic) design...
and this one is the same with thanks to Sophy from Colex Homes for tidying it up for us...(you may have to click to enlarge)
The list below are items we want as inclusions for our new home, some builders do some of these as standard, others have upgrade deals and others charge extra for certain items, so its a little hard to compare apples with apples directly - but we are going to try and get the best value for money with the least amount of compromise....
- 9ft ceilings throughout & 8ft doors to living areas
- Caesar Stone Bench tops in kitchen
- Bevelled laminated doors in kitchen
- Glass splashback in kitchen
- 900mm stove/benchtop & glass canopy rangehood
- Large semi-recessed basins in bathrooms
- Frameless glass showers
- 1200mm shwr in ensuite
- Double, hinged (not sliding), aluminium patio doors (both in meals and family area)
- Aluminium awning windows (all façade windows tinted)
- Zoned central heating
- Colourbond roof or shingle concrete roof tiles (quote both options)
- Set down concrete slab for timber floors in family area only
- EAVES all around!!!!!!!!!!!!!!!!!!!!!!!!!
Well we are off to see more display homes and talk to builders again on the weekend!
Quick note for those interested in home building & renos or just after a good laugh!:
I have been spending a fair bit of time on a home building forum lately - in fact I am pretty much addicted and check it at least a few times a day - there is always something to learn and its also quite entertaining!! It is http://www.forum.homeone.com.au/
Wednesday, September 19, 2007
Working bee results...
Sunday, September 16, 2007
Making progress???
In the previous post there are some 'before' pic's - The garage with the steel leaning against it is now gone, and so is the shed with the red roof as well as the smaller shed in amongst the forrest! The recyclers have come and collected some of the steel and will be back again next week for the rest!
I will have to post the 'after' ones later this week as I keep forgetting to take the camera with me when we go there!!!
Thursday, August 30, 2007
Monday, August 27, 2007
We bought a house!

Well, actually we bought a block of land with a house on it....and lots of other stuff we don't want! The backyard is full of trees and bricks, pavers, steel fences, old sheds and well some areas I haven't ventured into yet! (The previous owner was a keen gardener a few decades ago!) Its a good sized block - 16.15 x 42.3 - so we have a few options on what to build on it.
You can't really see it from the picture, but we think it's a 1950's war loan home. The dwelling has 3 bedrooms and a lean to at the back, it's in "liveable" condition - problem is I can't picture myself living there so we'll stay where we are for the moment!

Here is a view of part of the backyard....last weekend we finally got vacant possesion and we were in there working away, so that old greenhouse (covered in mesh to the left of the screen) has been pulled down, and the steel fence has also been pulled down. A few helpers came around and some of the bricks have been taken out as well....though at this rate, it's going to be a long road ahead before we can even start looking at slabs or foundations!

We had the pleasure of meeting our neighbours on Saturday as well, and they are lovely (on both sides!) On one side there is a contemporary, double storey, architectually designed house and to the other side, a standard weatherboard. We are thinking of building something contemporary ourselves, but the only thing we are sure of at this stage is that we want a single storey brick home!
So I will continue to monitor the progress as slow as it will be....and upload some pictures as we go along!
Subscribe to:
Comments (Atom)
